|
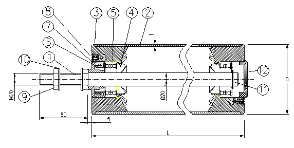
Sidestyrruller 20 mm aksel
Oversigt ø63 - 76 - 89 - 108 mm |

Ø
Rullediameter
mm |
Akseldiameter
mm |
Akselgevind |
t
Godstykkelse
Rullerør
mm |
L
Mindste
Rullelængde
mm |
Tegning nummer
Bestillingsnummer |
| 63 |
20 |
M 20 |
2,9 |
80 |
31.020.063.2761 |
| 76 |
20 |
M 20 |
3.0 |
100 |
31.020.076.2762 |
| 89 |
20 |
M 20 |
3.0 |
100 |
31.020.089.2763 |
| 108 |
20 |
M 20 |
3,6 |
100 |
31.020.108.2764 |
| INDEX |
BESKRIVELSE |
| 1 |
Aksel ø20 mm centerlessslebet stål |
| 2 |
Rør Stål |
| 3 |
Nav komposit |
| 4 |
Fedtkapsel komposit |
| 5 |
Præcisionskugleleje type 6004 2RS |
| 6 |
Labyrinttætning, indvendig part, komposit |
| 7 |
Labyrinttætning, udvendig part, komposit |
| 8 |
Smørenippel |
| 9 |
Møtrik M20 |
| 10 |
Spændeskive stål |
| 11 |
Seegerring U20 |
| 12 |
Endedæksel |
|
|
|